Am placerea sa va ofer spre vanzare acest spatiu comercial situat central, in Calea Plevnei nr 11-13, in apropiere de parcul Cismigiu si Izvor, Piata Kogalniceanu, cu trafic pietonal intens si acces la mijloace de transport in comun.
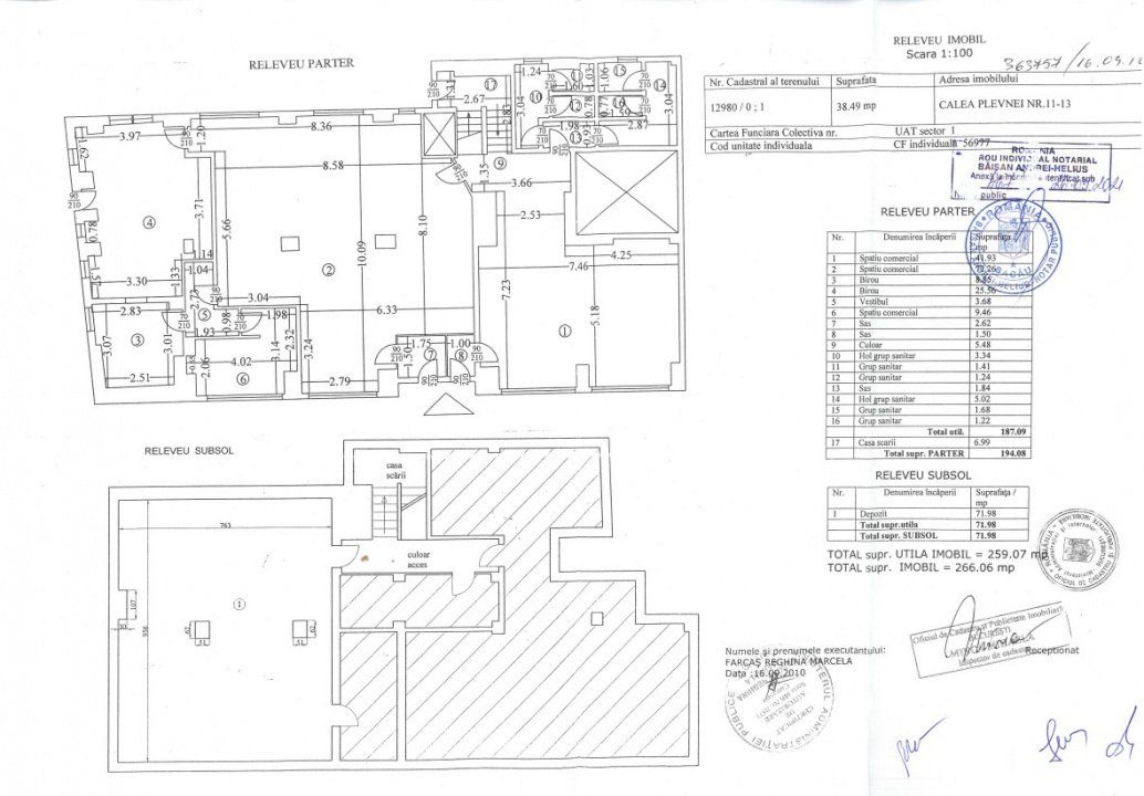
Spatiul este situat la Parter si Subsol de bloc (fara clasa de risc seismic sau urgente), cu 3 cai de acces (1 stradala si 3 laterale), are o suprafata utila de 266 mp din care 194 mp (Parter) si 72 mp (Subsol), parterul comunica cu subsolul printr-o scara interioara insa au si acces separat, o vitrina generoasa de 14 mp si tubulatura hota scoasa pe bloc.
Spatiul este functional, bransat la toate utilitatile (inclusiv 380V) si contorizat separat. Are de asemnea centrala proprie pe gaz.
Spatiul este inchiriat in acest moment si se solicita pastrarea contractului de inchiriere care are valabilitate pana in Noiembrie 2027 cu posibilitate de prelungire.
Este ideal pentru investitie !
Pentru mai multe detalii nu ezitati sa ma contactati.

Spatiu comercial situat central, cu vitrina & vizibilitate. Ideal Investitie
ID: FX61208 Bucuresti, Cismigiu
13
475.000€ + TVA
Camere
3
Suprafata utila
266 mp
Front stradal
17 m
An constructie
1969
Descriere
Caracteristici
- ID:FX61208
- Nr. camere:3
- S. utila:266.00 mp
- S. construita:287.00 mp
- S. vitrina:14.00 m
- Front stradal:17.00 m
- Comp.:Open space
- Nr. bai:32
- An constructie:1969
- An renovare:2020
- Structura rezistenta:Beton
- Regim inaltime:D+P+6
Specificatii
Curent
Apa
Canalizare
Gaz
Curent trifazic
Acces internet
Fibra optica
Centrala proprie
Calorifere
Aer conditionat
Izolatie Interior
Vopsea lavabila
Faianta
Parchet
Gresie
Ferestre Termopan
Spoturi
Aplice
Lumina naturala
Apometre
Contor gaz
Nemobilat
Control electric individual
Administrare
Supraveghere video
Localizare
Mihai Alexandru
Esti interesat de aceasta proprietate ?