Imagine 38

Apartament modern, bloc reabilitat, zona si pozitie ideala - totul nou

ID: P212310 Giurgiu 1171
51.000€ 54.500€
Camere
2
Suprafata utila
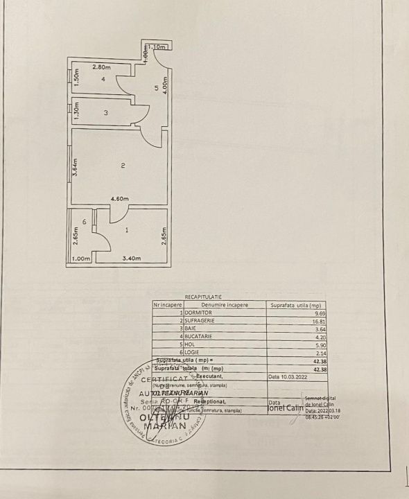
43 mp
Etaj
Etaj 4
Bai
1
Descriere
Descoperiți acest apartament de vis, cu două camere spațioase și luminoase, situat în orașul Giurgiu, într-o zonă comercială extrem de convenabilă, aproape de KFC, benzinăria Petrom, Lidl, bănci, loc de joacă, școli și grădinițe.

Apartamentul este complet renovat și se află la etajul 4/4, într-un bloc recent reabilitat și izolat termic, inclusiv acoperișul. Imobilul beneficiază și de panouri solare, ceea ce oferă un plus de eficiență și economie. Instalația sanitară și instalația electrică sunt complet noi, locuința dispune de centrală pe gaz, baie modernă, ușă metalică și camere luminoase, bine compartimentate, ideale pentru confortul unei familii.

În plus, apartamentul oferă loc de parcare chiar lângă bloc și se poate achiziționa și prin credit ipotecar.

📞 Pentru vizionări și detalii apelati la numarul din anunt
sau
📩 Email: m.alexandru04@gmail.com
Caracteristici
  • ID:P212310
  • Nr. camere:2
  • Nr. dormitoare:1
  • S. utila:43.00 mp
  • Comp.:Semidecomandat
  • Etaj:Etaj 4
  • Nr. bucatarii:1
  • Nr. bai:1
  • Nr. balcoane:1
  • Structura:Beton
  • Tip imobil:Bloc
  • Regim inaltime:S+D+P+4
Specificatii
Curent
Apa
Canalizare
Gaz
Centrala proprie
Calorifere
Izolatie Exterior
Bloc izolat termic
Vopsea lavabila
Faianta
Parchet
Gresie
Ferestre PVC
Ferestre Termopan
Jaluzele Verticale
Usa intrare Metal
Usa interior Lemn
Bucatarie Nemobilata
Contor gaz
Nemobilat
Interfon
Localizare
Mihai Alexandru
Esti interesat de aceasta proprietate ?
Proprietati similare
TOP 0% comision Exclusivitate Imagine 521
Oportunitate Unică în Centrul Orașului: APARTAMENT CU 3 CAMERE
Giurgiu 56.000€ 59.900€
3 camere 1 baie 58mp
TOP 0% comision Exclusivitate Imagine 1
Apartament 2 camere situat in Str. Decebal-Bd. Daciei
Giurgiu, Casa Cartii 49.500€
2 camere 1 baie 51mp